Retângulo áureo, divisão áurea e
seqüência de Fibonacci

Geraldo Ávila
Departamento de Matemática – UnB
70 910 – Brasília – DF

     1. O retângulo áureo

Chama-se retângulo áureo qualquer retângulo ABCD (Fig. 1) com a seguinte propriedade: se dele suprimirmos um quadrado, como ABFE, o retângulo restante, CDEF, será semelhante ao retângulo original.

 

Se a + b e a são os comprimentos dos lados do retângulo original a definição acima se traduz na relação

.        (1)

Como veremos logo adiante, esse tipo de retângulo tem muitas propriedades interessantes que justificam o qualificativo “áureo”. Ele tem sido considerado por

arquitetos e artistas como o retângulo mais bem proporcionado e de grande valor estético. A Fig. 2 reproduz a foto de uma residência suburbana de Paris, projetada pelo famoso arquiteto Le Corbusier, na qual ele utiliza o retângulo áureo. Há aí dois retângulos áureos, um deles representado pelo corpo inteiro da casa e o outro, disposto verticalmente, representado pela parte da casa à esquerda da escada.



Fig. 3

O Partenon (Fig. 3), ou templo da deusa Atena, uma das mais admiradas obras da arquitetura universal, revela, em seu frontispício (Fig. 4) um quase exato retângulo áureo. Todavia não há evidencia histórica de que, ao construir o templo no 5 século A.C., os arquiteto de Péricles tenham conscientemente usado o retângulo áureo.

 


Fig. 4

Voltemos à relação (1). Dela decorre, por uma propriedade bem conhecida das proporções, que:

 

ou seja;

Isto significa que se o retângulo de lados a + b e a é áureo, então também o é o retângulo de lados a e b.


Fig. 4

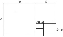
Evidentemente o mesmo raciocínio se aplica para mostrar que  também são áureos os retângulos de lados b e a – b, a – b e 2b – a, etc. (Fig. 5). Em outras  palavras, dados os números positivos a e b, satisfazendo a relação (1), formemos a seqüência
a + b, a, b, a2, a3, ..., onde

  a + b, a, b, a – b, 2b – a, 2a – 3b,

5b – 3a, 5a – 8b, 13 b – 8a, ... (2)

Pois bem, o raciocínio anterior estabelece que quaisquer dois elementos consecutivos desta seqüência são os lados de um retângulo áureo. Portanto, o processo anterior de retirar quadrados de retângulos áureos conduz a  uma seqüência infinita de retângulos áureos, com dimensões cada vez menores e tendendo  a zero.

É fácil provar que os lados de um retângulo áureo são grandezas incomensuráveis. (Veja a definição deste e de outros conceitos correlatos na pág. 6 do número 5 da RPM.) Se fossem comensuráveis, teriam um submúltiplo comum s, de sorte que, com referencia à Fig. 1,

  AD = (a + b)    e    AB = a

onde a e b seriam então números inteiros. Em conseqüência, todos os números da seqüência (2) seriam inteiros e positivos. Isto é um absurdo, pois não existe seqüência infinita e decrescente de números inteiros positivos. Concluímos, então, que os lados de um retângulo áureo são incomensuráveis.

 

     2.  A divisão áurea

O retângulo áureo está intimamente ligado com a chamada divisão áurea de um segmento, ou divisão em média e extrema razão, que introduziremos a seguir.

Diz-se que um ponto C de um segmento AB (Fig. 6) divide este segmento em média e extrema razão se

              (3)

 


Fig. 6

A relação (3) é precisamente a relação (1) se pusermos AC = a e CB = b, de sorte que os segmentos AC e CB da divisão áurea (ou AB = a + b e AC = a) são os lados de um retângulo áureo.

É interessante notar que se C1 divide AB em média e extrema razão, e se marcarmos no segmento AB os pontos C2, C3, C4,... de tal maneira que AC2 = C1B, AC3 = C2C1, AC4 = C3C2, ... (Fig. 7), então Cn divide ACn-1 em média e extrema razão n = 2, 3, 4,... Este resultado segue facilmente do que já provamos antes sobre a seqüência infinita.

de retângulos áureos, donde segue também que os segmentos AC1 e C1B da divisão áurea de AB são incomensuráveis. Sugerimos que o leitor faça uma demonstração completa destes resultados.

Como já observamos há pouco, as relações (1) e (3) são idênticas quando pomos AC = a e CB = b. Delas segue-se que

b2 = ab = a2.           (4)

O número m = b/a é conhecido como a razão áurea. Dividindo a equação anterior por a2 obtemos:

m2 + m = 1.            (5)

O primeiro membro torna-se um quadrado perfeito quando lhe adicionamos 1/4:

ou seja,

 

Extraindo a raiz quadrada e notando que m > 0, teremos:

 

portanto,  

      

 

     3. Construções geométricas  

Vamos construir um retângulo áureo a partir de seu menor lado AE = a (Fig. 8). Para isso construímos EF = AE perpendicularmente a AE. Com centro em G, ponto médio do segmento 

AE, traçamos o arco , onde D jaz na reta AE e E é interno ao segmento AD. Como 
GF = GD = b + a/2, o teorema de Pitágoras aplicado ao triangulo retângulo GEF nos dá:

Simplificando, obtemos daqui a relação (4) que, como vimos, equivale à relação (1). Logo ABCD é um retângulo áureo.

Se o problema fosse dividir o segmento AE = EF em média e extrema razão, bastaria completar a construção anterior marcando, no segmento AE, o ponto H tal que AH = b (Fig. 9).


Fig. 9

   

    4. A seqüência de Fibonacci e a razão áurea  

É surpreendente que a razão áurea esteja intimamente relacionada com a chamada seqüência de Fibonacci, como veremos a seguir, pois aparentemente uma coisa nada tem a ver com a outra.

Leonardo de Pisa, muito conhecido como Fibonacci (filho de Bonaccio), viveu no período de aproximadamente 1170 a 1250. Ele foi educado na África e viajou muito pela Europa e Ásia Menor. Tornou-se famoso por conhecer muito bem toda a Matemática então acumulada. Em 1202 ele publicou o Liber Abaci, ou Livro do Cálculo, que teve importância decisiva na tarefa de tornar conhecida na Europa a Matemática dos árabes e hindus. Foi esse livro que popularizou no Ocidente o uso dos algarismos arábicos e os métodos hindus de cálculo com números inteiros, frações e raízes.

A seqüência de Fibonacci aparece num dos problemas tratados no Liber Abaci e que consiste no seguinte:

Um casal de coelhos torna-se produtivo após dois meses de vida e, a partir de então, produz um novo casal a cada mês. Começando com um único casal de coelhos recém-nascidos, quantos casais existirão ao final de um ano?

Vamos designar com fn o número de casais de coelhos existentes após n meses. Evidentemente, Por outro lado, o número de casais existentes no n-ésimo mês, fn, é igual ao numero existente um mês antes, fn-1, mais o numero de nascimentos novos. Ora, este numero é precisamente  o número de casais  existentes há dois meses, fn-2, que têm pelo menos dois meses de vida, portanto em condições de reproduzir. Então, cada elemento da seqüência de Fibonacci é a soma dos dois precedentes. Como já sabemos que , podemos construir toda a seqüência:

 ou seja,

1, 1, 2, 3, 5, 8, 13, 21, 34, 55, 89, 144,...

Que relação pode existir entre esta seqüência e a razão áurea? Aparentemente nenhuma. No entanto, vamos demonstrar agora – para surpresa de todos nós! ... – que a razão  áurea m é o limite, com n , da razão fn-1 / fn, isto é,

Para isto, começamos reescrevendo a seqüência (2) sem os seus três primeiros elementos, a + b, a, b, isto é,

  a2, a3, ..., an, ...,

onde

  -                  -

-                           (8)

-        (9)

Vamos demonstrar  que esta lei de formação (9) equivale a

-    (10)

Para isto, vamos provar que se a lei de formação (10) vale para 4 n k, ela vale também para n = k + 1 . Ora, de (9) obtemos:

-

Daqui e de (10), com n = k – 1 e n = k, vem

como

   e

 obtemos

  ,

que é precisamente (10) com n = k + 1.

Fica assim demonstrado que se a lei de formação (10) vale para 4 n k, ela vale também para n = k +1. Ora, (10) vale para n = 4, como vemos em (8), logo vale para todo n 4.

Prosseguindo agora na demonstração de (7); lembremos que os elementos an da seqüência (2) se aproximam de zero com n . Então, nos dá

ou seja,

 

É claro que isto pode ser escrito na forma (7), C.Q.D.

A título de curiosidade, vamos calcular fn-1 / fn com três casas decimais, para n = 1, 2, ..., 8:

Para n 8, fn-1 / fn é sempre 0,618, com arredondamento na 3 casa decimal.

   

     5. Observações finais  

A divisão áurea é conhecida desde os pitagóricos de cinco séculos A.C. Ao que tudo indica, essa divisão foi descoberta no pentágono regular, que exibe uma surpreendente profusão de segmentos na razão áurea. Talvez este tenha sido o motivo que levou os pitagóricos a adotarem o pentagrama (pentágono regular estrelado) como símbolo de sua seita (Fig. 10).


 
Fig. 10                     Fig. 11

Como exemplo de ocorrência da divisão áurea num pentágono regular convexo mencionamos que a interseção de duas de suas diagonais divide qualquer delas em média e extrema razão. Assim, na Fig, 11,

  .

Deixamos ao leitor a tarefa de demonstrar esse resultado.

É muito improvável que Pitágoras ou seus primeiros discípulos soubessem que os segmentos  da divisão áurea fossem incomensuráveis, embora haja fundadas razões para se acreditar que a descoberta dos incomensuráveis tenha ocorrido com o pentágono regular no fim do 5 século A.C. Certamente,  Pitágoras e seus discípulos sabiam como construir geometricamente a solução (6) da equação (5). As construções correspondentes às Figs 8 e 9 acima se encontram nos “Elementos” de Euclides, de cerca de 300 anos A.C.

Na antiguidade, a divisão de um segmento em média e extrema razão tornou-se tão familiar que era conhecida simplesmente como a “seção”, em qualquer qualificativo. O nome “divisão áurea” lhe foi dado por Kepler (1571-1630), que escreveu:

A Geometria possui dois grandes tesouros: um é o Teorema de Pitágoras; o outro, a divisão de um segmento em média e extrema razão. Podemos comparar o primeiro a uma porção de ouro e o segundo a uma jóia preciosa.

Tanto a razão áurea, como os números de Fibonacci, aparecem numa variedade enorme de situações inesperadas (veja a  ref. [2] e o cap. 5 da ref. [3]). Hoje a literatura sobre os números de Fibonacci é enorme. Existe até uma revista – The Fibonacci Quartely – fundada em 1963, dedicada à pesquisa em torno desses números!

Ao concluir este artigo, deixamos dois problemas ao leitor:

1. Demonstre que num triângulo isósceles, com ângulos de 72º, 72º e 36º, a bissetriz interna de um dos ângulos de 72º divide o lado oposto em média e extrema razão.

2. Use o resultado anterior para construir o decágono e o pentágono regulares inscritos num círculo dado.

O leitor que tiver dificuldade com esses problemas, poderá se valer da seção 2.4 da ref. [1].

 

 

Referências

[1] A. Aaboe, Episódios da História Antiga da Matemática, Coleção Fundamentos da Matemática Elementar, SBM, 1984.
[2] H.E. Huntley. The Divine Proportion, Dover Publications, 1970.
[3] L. Zipin, Uses of Infinity, The Mathematical Association of America, 1962.